Objektart
Adresse
Objektdaten
Informationen
Ausstattung
Details
Vielseitig nutzbar: Eigennutzung oder attraktive Vermietung
Diese gepflegte Haushälfte überzeugt durch ihre begehrte Zentrumslage, eine durchdachte Raumaufteilung und vielseitige Nutzungsmöglichkeiten. Ob als gemütliches Eigenheim für Paare oder kleine Familien oder als interessante Kapitalanlage zur Vermietung - diese Immobilie bietet eine ideale Kombination aus Wohnkomfort, Lagequalität und Flexibilität.
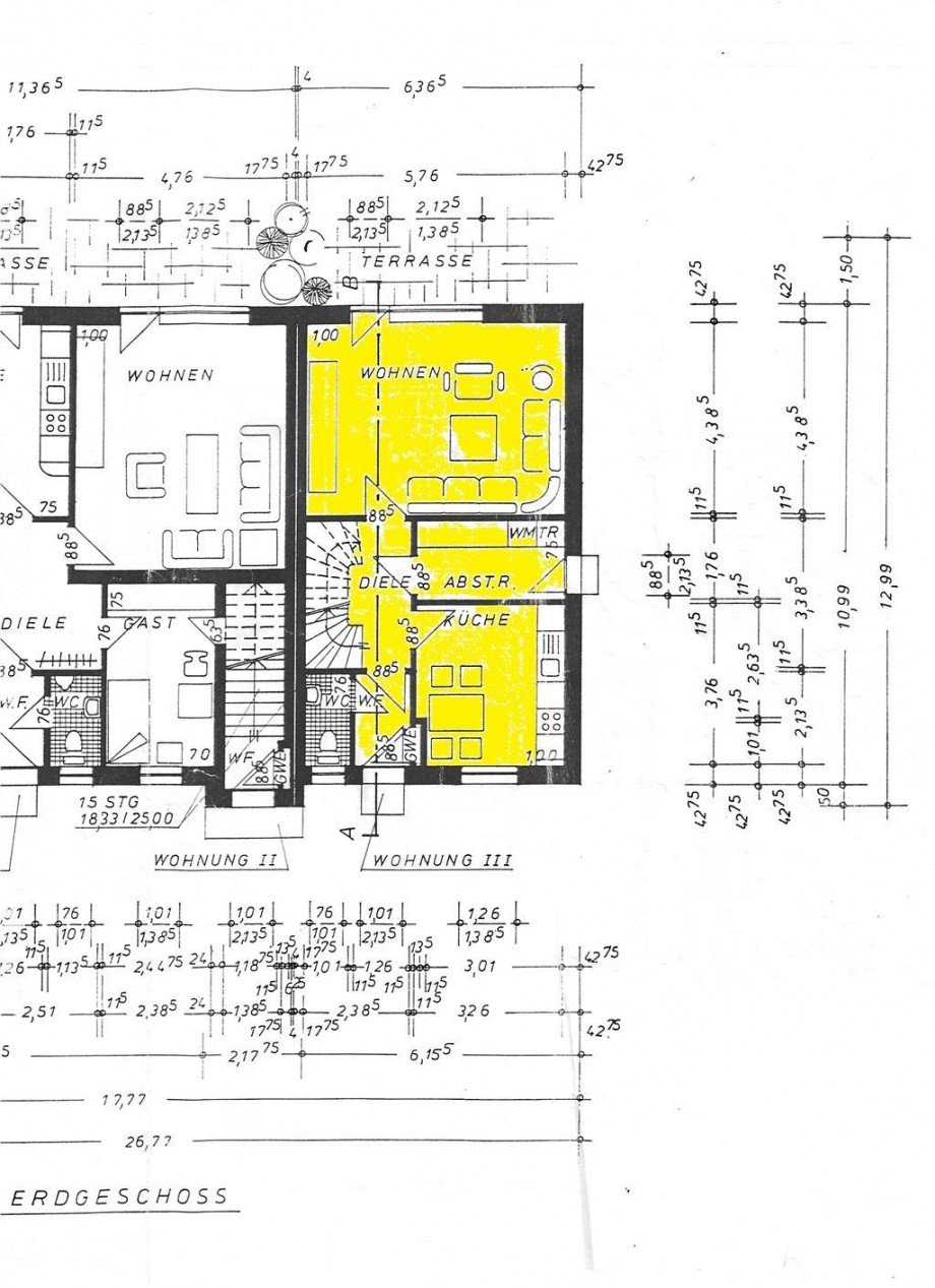
Erdgeschoss:
Wohnzimmer mit Zugang zur Terrasse, Wohnküche, Diele, WC, Hauswirtschaftsraum.
Obergeschoss:
Schlafzimmer, Kinderzimmer, Bad, Flur, Abstellraum.
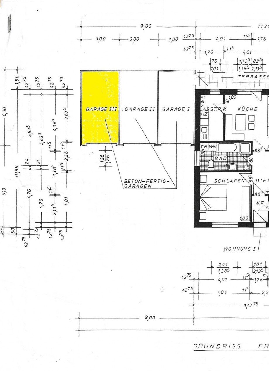
Garage, Außenabstellraum.
Gaszentralheizung ca. 2 Jahre alt.
Die Immobilie befindet sich in zentraler und gleichzeitig angenehmer Wohnlage. Einkaufsmöglichkeiten des täglichen Bedarfs, Ärzte, Apotheken, Schulen, Kindergärten sowie Cafés und Restaurants sind bequem fußläufig erreichbar. Auch öffentliche Verkehrsmittel sowie wichtige Verkehrsverbindungen befinden sich in unmittelbarer Nähe und sorgen für eine sehr gute Anbindung.
Die zentrale Lage macht die Immobilie sowohl für Eigennutzer als auch für Mieter besonders attraktiv. Kurze Wege und eine gewachsene Infrastruktur erhöhen den Wohnkomfort und sichern eine nachhaltige Nachfrage auf dem Mietmarkt.
Ansprechpartner
Telefax: +49 4944 910220
info@meents-immobilien.de
Energieausweis (Bedarfsausweis)
92,60 kWh / (m²*a) Endenergiebedarf
92,60 kWh / (m²*a) Endenergiebedarf
92,60 kWh / (m²*a) Endenergiebedarf
Weitere Informationen
| Wesentlicher Energieträger | Gas |
| Energieausweis Ausstelldatum | 2021-10-27 |
| Energieausweis gültig bis | 26.10.2031 00:00:00 |
| Energieausweis Jahrgang | ab dem 1.5.2014 |
| Energieausweis Werteklasse | C |
| Energieausweis Baujahr | 1995 |
| Energieausweis Gebäudeart | Wohngebäude |
| Heizung | Zentralheizung |
| Befeuerung | Gas |
